Skip to main content

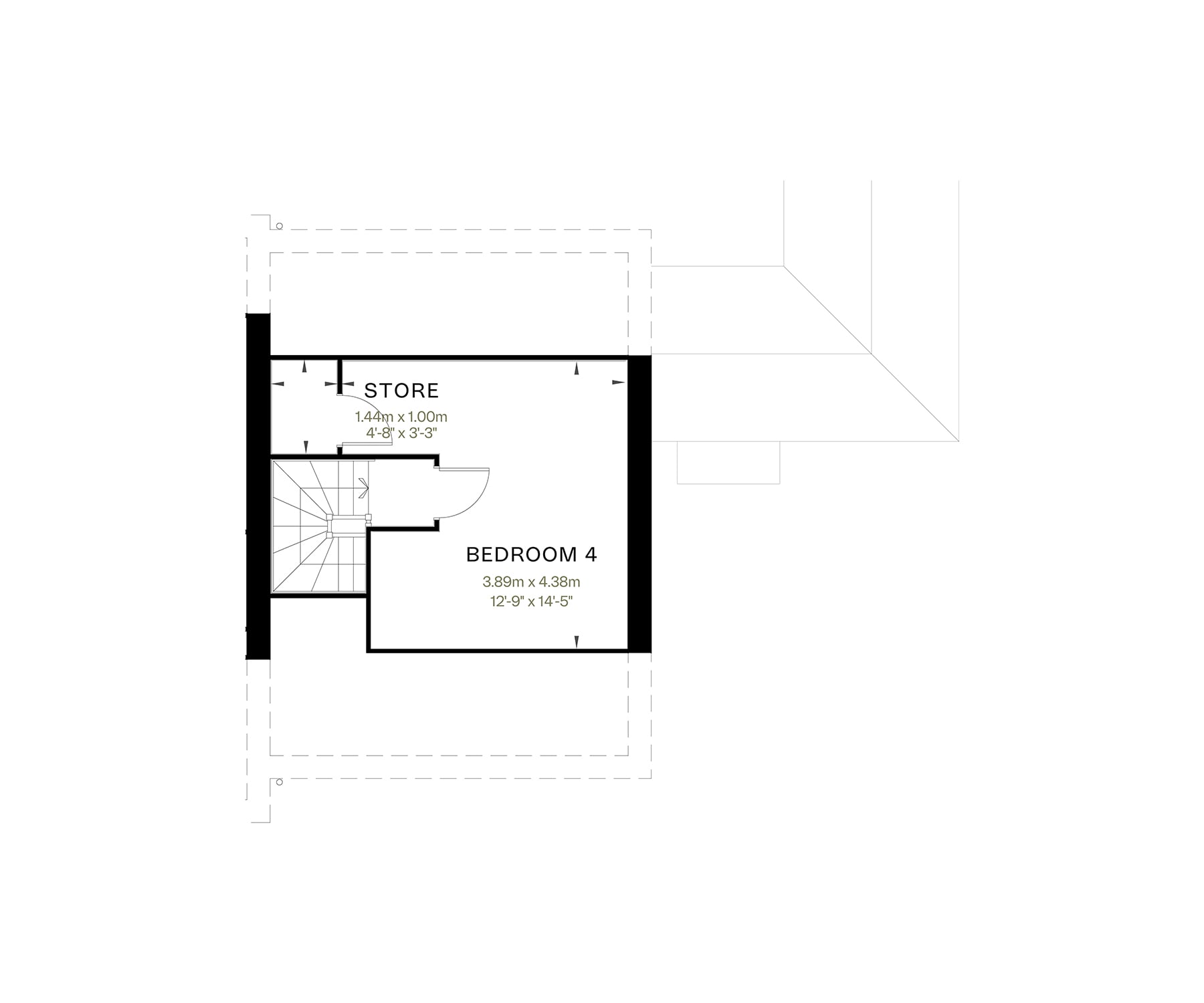
Heath Plot 1

Share this plot

  • 775,000
  • 4 bedrooms
  • Terraced
  • 2 bathrooms
  • 1530 sq.ft.

Exclusive first look on Saturday 25th April - Book your personal appointment

  • Expansive open-plan kitchen, dining and family area with bifold doors onto rear garden
  • Separate spacious sitting room with bifold doors onto rear garden
  • Generously proportioned study and playroom
  • Separate utility room for additional storage
  • Well-proportioned principal bedroom with en suite
  • Spacious second, third and fourth bedrooms
  • Expansive rear garden
Visit Poppy Court, Melbourne. Get directions

Find out how much your home is worth

Home valuation

Check your affordability

Mortgage calculator

What's included

Interiors

  • White grained cottage style doors with polished chrome handles
  • Built-in wardrobes to principal bedroom or dressing area*

Kitchen

  • JT Ellis designed kitchens
  • Quartz worktops
  • AEG kitchen appliances
  • Fully integrated fridge freezer
  • Fully integrated dishwasher

Bathroom

  • Ideal Standard sanitaryware with Aqualisa taps
  • Porcelanosa wall tiles to family bathroom and en suites
  • Porcelanosa floor tiles to family bathroom

Energy-saving features

  • Electric vehicle charger

External

  • Slabbed pathways to front and rear of homes
  • Turf to front garden

Peace of mind

  • Two year fixtures and fittings warranty with Cameron Homes
  • Ten year NHBC warranty on the structure of your home
  • All homes built to the New Homes Quality Code standard

Speak to a sales advisor to discuss the personalisation options for your chosen home.

*Optional extra

Learn more about our specifications and finishings